Es gibt ein Problem mit Ihrer Internetverbindung, bitte überprüfen Sie das.

Gewerbefläche für Büro oder Praxis in absolut zentraler Lage von Schweinfurt zu vermieten

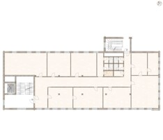
3. OG
97421 Schweinfurt
Objekt ID: SIW-2580

Objektbeschreibung.

Gewerbefläche für Büro oder Praxis in absolut zentraler Lage von Schweinfurt zu vermieten.

Die Gewerbeeinheit mit ca. 451 m² befindet sich im 3. OG und ist mittels Aufzug zu erreichen. Es besteht die Möglichkeit die Fläche zu teilen, bitte sprechen Sie uns bei Interesse gerne an.

Stellplätze sind vorhanden, Sie können 10 Tiefgaragenstellplätze oder 18 Doppelparker anmieten.

Lassen Sie sich das Exposé mit weitern Bilder zusenden. Bei einem Termin vor Ort können wir gerne alles weitere besprechen.

Aussenansicht 3. OG 3. OG 3. OG 3. OG 3. OG 3. OG 3. OG

Objektdaten.

Objekttyp
Büro/Praxen
Zimmer
8
Wohnfläche in m²
-
Nutzfläche in m²
-
Gesamtfläche in m²
-
Grundstück in m²
-
Kaltmiete
4.059 €
Courtage inkl. MwSt.
-
Etagenzahl
-
Baujahr lt. Energieausweis
1910

Ausstattung.

- flexible Ständerwände
- Toiletten Damen/Herren + separater Abstellraum mit Wasseranschluss
- Teppichböden
- EDV-Verkabelung
- Tiefgaragenstellplätze und Duplexparker möglich
- sofortiger Mietbeginn möglich
- Kellerraum vorhanden

Energieverbrauchsausweis.

Klasse
D
Endenergieverbrauch
-
gültig bis
10.03.2034
Erschliessung
-
wesentlicher Energieträger
Fernwärme
Zustand
Gepflegt
Energieausweis
Bedarfsausweis
Endenergiebedarf
121,3 kWh/(m²a)
Baujahr
1910
Endenergiebedarf (Strom)
80,1 kWh/(m²a)
Endenergiebedarf (Wärme)
121,3 kWh/(m²a)
Endenergieverbrauch (Strom)
-
Endenergieverbrauch (Wärme)
-
Warmwasser enthalten
Nein

Lage.

Die kreisfreie Stadt Schweinfurt/Bayern mit ihren rund 53.500 Einwohnern ist Verwaltungssitz des Landkreises Schweinfurt, Oberzentrum, Hochschul- Schul- Verwaltungsstadt und fränkischer Weinort.

Schweinfurt liegt mit ihren drei Anbindungen an die A70 und eine Anbindung an die A71 verkehrstechnisch sehr günstig. Mit Regionalbahn- und Regionalexpresszügen ist die Stadt Schweinfurt an den Schienennahverkehr angebunden, der Hafen Schweinfurt liegt im Wasserstraßenverkehrsnetz Mitteleuropas, das den Osten und den Westen verbindet. Selbstverständlich pendeln die Städtischen Busse regelmäßig, so dass Sie auch ohne Auto die vielfältigen sportlichen und kulturellen Veranstaltungen der Stadt besuchen können.

Wir sind für Sie da.

Sofortanfrage zum Objekt.

* PflichtfelderBitte füllen Sie dieses Feld aus.
Bitte füllen Sie dieses Feld aus.
Bitte füllen Sie dieses Feld aus.
Bitte füllen Sie dieses Feld aus.
Bitte füllen Sie dieses Feld aus.
Bitte füllen Sie dieses Feld aus.
Bitte füllen Sie dieses Feld aus.
Bitte füllen Sie dieses Feld aus.
Bitte klicken Sie dieses Kästchen an, um fortfahren zu können.