Es gibt ein Problem mit Ihrer Internetverbindung, bitte überprüfen Sie das.

Modern. Hell. Grün. - Neubau-Doppelhaushälfte in lebenswerter Lage in Winkelhaid

Südseite Garten
90610 Winkelhaid
Objekt ID: SIW-3462

Objektbeschreibung.

Diese moderne Doppelhaushälfte wird nach KfW-40-Standard auf einem aktuell noch unbebauten Grundstück errichtet. Das geplante Bauvorhaben vereint moderne Architektur, energieeffiziente Technik und ein familienfreundliches Raumkonzept – ideal für alle, die komfortabel, nachhaltig und zukunftsorientiert wohnen möchten.

Wichtiger Hinweis:
Das Grundstück ist derzeit noch nicht bebaut – der Bau der Doppelhaushälfte erfolgt nach Kauf bzw. Vereinbarung. So haben Sie die Möglichkeit, Ihr zukünftiges Zuhause aktiv mitzugestalten.

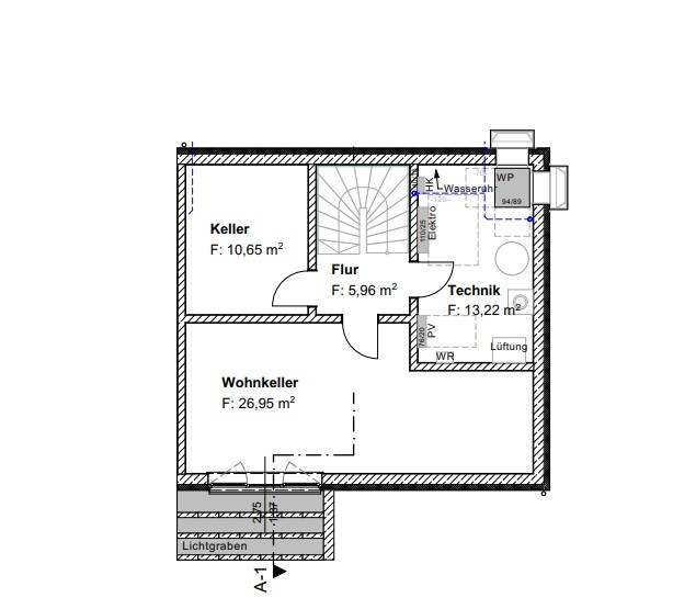
Im Untergeschoss befindet sich ein großzügiger Hobby- bzw. Mehrzweckraum mit Tageslicht, der sich flexibel als Homeoffice, Fitnessraum oder Rückzugsort nutzen lässt. Ergänzt wird das Untergeschoss durch einen Technikraum und einen separaten Kellerraum mit viel Stauraum.

Das Erdgeschoss überzeugt mit einem offen gestalteten Wohn-/Essbereich, der viel Licht und ein angenehmes Raumgefühl schafft. Von hier aus gelangen Sie direkt auf die Terrasse und in den eigenen Garten – ideal für entspannte Stunden im Freien. Die moderne Küche fügt sich harmonisch in das offene Konzept ein. Zusätzlich befindet sich im Erdgeschoss ein praktisches Gäste-WC mit Dusche.

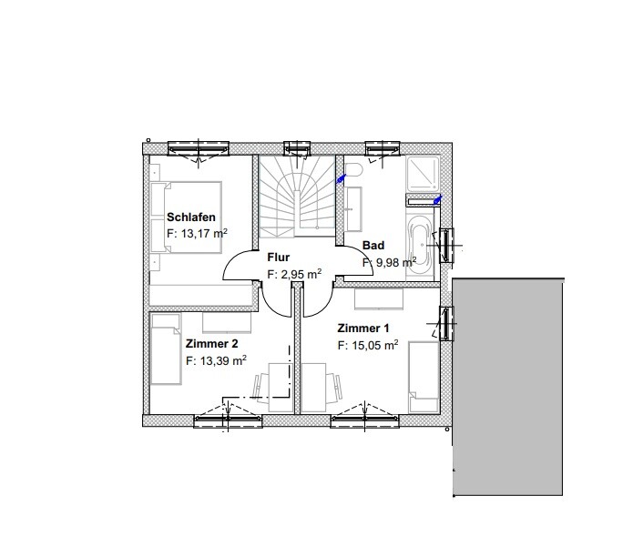
Im Obergeschoss erwarten Sie drei gut geschnittene Schlafzimmer – ideal für Familien und individuelle Wohnbedürfnisse. Das Tageslichtbad mit Badewanne und bodengleicher Dusche ist hochwertig ausgestattet und sorgt für Komfort auf hohem Niveau.

Der Garten bietet Platz zum Entspannen, Spielen oder Gärtnern. Zwei PKW-Stellplätze gehören zur Immobilie.

Diese Doppelhaushälfte ist ein Zuhause mit Zukunft – effizient, komfortabel und bereit für Ihre persönliche Note.

Hinweis:
Bitte beachten Sie, dass in der Gesamtwohnfläche auch ein Raum im Keller mit ca. 24 m² enthalten ist, der dank seiner Ausstattung individuell genutzt werden kann. Die Wohnfläche im Erd- und Obergeschoss beträgt somit ca. 107 m².

Südseite Garten Immobilienbild Immobilienbild Immobilienbild Immobilienbild Luftbild Untergeschoss Erdgeschoss Obergeschoss

Objektdaten.

Objekttyp
Haus
Zimmer
5
Wohnfläche in m²
131 m²
Nutzfläche in m²
27 m²
Gesamtfläche in m²
-
Grundstück in m²
234 m²
Kaufpreis
674.000 €
Courtage inkl. MwSt.
Provisionsfrei!
Etagenzahl
-
Baujahr lt. Energieausweis
-

Ausstattung.

- Fußbodenheizung in allen Wohnräumen
- Elektrische Aluminiumrollläden
- Effiziente Haustechnik
- Hochwertige Sanitärobjekte

Optional – gegen Aufpreis – sind folgende Ausstattungsvarianten möglich:

- Wohnraumkühlung über Wärmepumpe in Kombination mit Photovoltaik
- Photovoltaikanlage (6,4 kWp) mit Sonnenbatterie (5,5 kWh) für den KfW 40 Plus Standard
Wir empfehlen Ihnen eine Beratung durch einen Finanzierungsberater, um mögliche Fördermöglichkeiten zu prüfen.
- Individuelle Innenausstattung
- Hochwertige Küche
- Carport und/oder Garage

Energieverbrauchsausweis.

Klasse
-
Endenergieverbrauch
-
gültig bis
-
Erschliessung
-
wesentlicher Energieträger
-
Zustand
-
Energieausweis
Erstellung erfolgt bei Realisierung des Bauvorhabens.
Endenergiebedarf
-
Baujahr
-
Endenergiebedarf (Strom)
-
Endenergiebedarf (Wärme)
-
Endenergieverbrauch (Strom)
-
Endenergieverbrauch (Wärme)
-
Warmwasser enthalten
Nein

Lage.

Das angebotene Grundstück befindet sich in ruhiger Wohnlage innerhalb einer gewachsenen Siedlungsstruktur von Winkelhaid, einer gefragten Gemeinde im südöstlichen Großraum Nürnberg. Die Umgebung ist geprägt von Einfamilien- und kleinen Mehrfamilienhäusern mit gepflegtem Erscheinungsbild und viel Grün – ein attraktives Wohnumfeld für Familien und Berufspendler gleichermaßen.

Die verkehrstechnische Anbindung ist hervorragend: Der örtliche S-Bahnhof sorgt für eine direkte Verbindung nach Nürnberg, die Fahrzeit beträgt nur etwa 20 Minuten. Über die nahegelegene A3 und B8 ist auch der Individualverkehr bestens angebunden.

Im Ort selbst stehen sämtliche Einrichtungen des täglichen Bedarfs zur Verfügung – darunter Supermärkte, Bäckereien, Apotheken, Ärzte, Schulen und Kindergärten. Zahlreiche Freizeit- und Sportmöglichkeiten sowie die naturnahe Umgebung mit Wäldern und dem Schwarzachtal erhöhen die Lebensqualität zusätzlich.

Wir sind für Sie da.

Sofortanfrage zum Objekt.

* PflichtfelderBitte füllen Sie dieses Feld aus.
Bitte füllen Sie dieses Feld aus.
Bitte füllen Sie dieses Feld aus.
Bitte füllen Sie dieses Feld aus.
Bitte füllen Sie dieses Feld aus.
Bitte füllen Sie dieses Feld aus.
Bitte füllen Sie dieses Feld aus.
Bitte füllen Sie dieses Feld aus.
Bitte klicken Sie dieses Kästchen an, um fortfahren zu können.